|
首 页
|
公司简介
|
新闻中心
|
产品集锦
|
产品目录
|
产品知识
|
联系方法
|
网上订单
|
电子邮局
|
干油部分
电动润滑泵
手(脚)动润滑泵
加油泵
双线分配器
单线分配器
换向阀、操纵阀及其附件
稀油部分
稀油润滑装置及稀油站
稀油润滑元件
管路安装附件
管件部分
油气润滑元件
分 配 器 罩
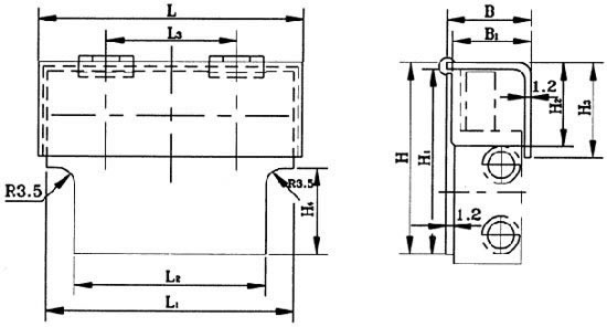
一、DW型分配器罩
代号(订货号)
适用分配器
L
B
H
L1
L2
L3
B1
H1
H2
H3
H4
重量(kg)
ZY626.1.00
DW-22
48
45
75
44
15
-
43
72
32
39
28
0.092
ZY626.2.00
DW-24
57
53
32
-
0.105
ZY626.3.00
DW-26
74
70
49
-
0.133
ZY626.4.00
DW-28
91
87
66
45
0.163
ZY626.5.00
DW-32.42.52
48
59
121
44
21
-
52
118
63
70
37
0.172
ZY626.6.00
DW-34.44.54
80
76
59
40
0.252
ZY626.7.00
DW-36.46.56
112
108
85
55
0.326
ZY626.8.00
DW-38.48.58
144
140
117
70
0.401
标记示例:分配器罩DW-22 ZY626.1.00
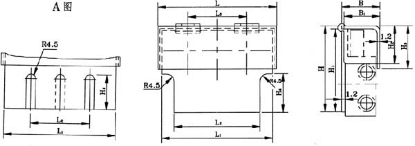
二、DV型分配器罩
注:ZY627.2.00和ZY627.3.00的分配器罩其主视图上的结构有所不同,见A图所示。
ZY627.2.00只有一个槽,见A图中虚线所示。
代 号 (订货号)
适用分配器
L
B
H
L1
L2
L3
B1
H1
H2
H3
H4
重量(kg)
ZY627.1.00
DV-31
48
43.5
103
44
15
-
41.5
100
45
48
43
0.11
ZY627.2.00
DV-32
77
73
-
-
0.175
ZY627.3.00
DV-33
106
102
29
50
0.228
ZY627.4.00
DV-34
135
131
58
75
0.281
ZY627.5.00
DV-41
54
45.5
121
50
21
-
43.5
118
51
54
50
0.142
ZY627.6.00
DV-42
85
81
52
40
0.212
ZY627.7.00
DV-43
116
112
83
60
0.275
ZY627.8.00
DV-44
147
143
112
75
0.338
ZY627.9.00
DV-51
57
50.5
136
53
34
-
48.5
133
54
62
55
0.174
ZY627.11.00
DV-52
94
90
61
45
0.265
ZY627.12.00
DV-53
131
127
98
60
0.35
ZY627.13.00
DV-54
168
164
135
90
0.436
ZY627.14.00
DV-61
86
62.5
147
82
33
-
60.5
144
64
67
58
0.23
ZY627.15.00
DV-62
112
108
79
55
0.354
Copyright © 2012 南通市立新机械制造有限公司 地址:江苏启东市城北工业园杨沙路27号
润滑设备
电话:0513-83308668 传真:0513-83308989 网址:www.ntlx.cn E-mail:ntlx@ntlx.cn
在线咨询