| 首 页 | 公司简介 | 新闻中心 | 产品集锦 |  产品目录 | 产品知识 | 联系方法 | 网上订单 | 电子邮局 | 
 
钢管用插入焊接式接头
代号(订货号)
管子外径(D0)
D+0.4
+0.2
D2
L1
L2
重量(kg)
对应号
ZT6.5.37-1
18
18.5
27
13
26.5
0.17
H1.13-1
ZT6.5.37-2
22
22.5
33
29
0.27
H1.13-2
ZT6.5.37-3
28
28.5
39
16
35
0.41
H1.13-3
ZT6.5.37-4
34
34.5
47
17
39
0.68
H1.13-4
ZT6.5.37-5
42
42.5
57
18
45
1.12
H1.13-5
ZT6.5.37-6
48
48.5
63
20
52
1.26
H1.13-6
ZT6.5.37-7
60
61
76
23
61
1.80
H1.13-7
标记示例:弯头18 ZT6.5.37-1
● 直通
代号(订货号)
管子外径(D0)
D
D2
L1
L2
重量(kg)
对应号
ZT6.5.38-1
18
18.5
32
32
12
0.12
H1.14-1
ZT6.5.48-2
22
22.5
35
36
13
0.19
H1.14-2
ZT6.5.48-3
28
28.5
40
42
16
0.35
H1.14-3
ZT6.5.38-4
34
34.5
48
46
17
0.41
H1.14-4
ZT6.5.38-5
42
42.5
60
48
18
0.61
H1.14-5
ZT6.5.38-6
48
48.5
65
54
20
0.72
H1.14-6
ZT6.5.38-7
60
61
80
62
23
1.38
H1.14-7
  标记示例:直通18 ZT6.5.38-1
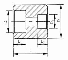
● 变径直通
代号(订货号)
管子外径(D0)
D
D1+0.4
+0.2
D2+0.4
+0.2
L
L1
L2
重量(kg)
对应号
ZT6.5.39-1
18×14
32
18.5
14.5
32
12
10
0.16
H1.15-1
ZT6.5.39-2
22×18
35
22.5
18.5
36
13
12
0.20
H1.15-2
ZT6.5.39-3
28×18
40
28.5
42
16
0.30
H1.15-3
ZT6.5.39-4
28×22
22.5
13
0.28
H1.15-4
ZT6.5.39-5
34×22
48
34.5
46
17
0.52
H1.15-5
ZT6.5.39-6
34×28
28.5
16
0.48
H1.15-6
ZT6.5.39-7
42×28
60
42.5
48
18
0.76
H1.15-7
ZT6.5.39-8
42×34
34.5
17
0.69
H1.15-8
ZT6.5.39-9
48×34
65
48.5
54
20
0.95
H1.15-9
ZT6.5.39-10
48×42
42.5
18
1.17
H1.15-10
ZT6.5.39-11
60×42
80
61
62
23
1.70
H1.15-11
  标记示例:变径直通18×14 ZT6.5.39-1
● 变径接头
代号(订货号)
D1±0.5
D2
L1
L2
L3
重量(kg)
对应号
ZT6.5.41-1
22
18.5
13
17
34
0.07
H1.16-1
ZT6.5.41-2
28
9
25
0.08
H1.16-2
ZT6.5.41-3
34
0.15
H1.16-3
ZT6.5.41-4
42
11
26
0.25
H1.16-4
ZT6.5.41-5
48
12
13
29
0.41
H1.16-5
ZT6.5.41-6
28
22.5
13
20
38
0.13
H1.16-6
ZT6.5.41-7
34
9
25
H1.16-7
ZT6.5.41-8
42
26
0.23
H1.16-8
ZT6.5.41-9
48
14
11
29
0.31
H1.16-9
ZT6.5.41-10
34
28.5
16
19
42
0.30
H1.16-10
ZT6.5.41-11
42
12
48
.034
H1.16-11
ZT6.5.41-12
48
10
29
0.36
H1.16-12
ZT6.5.41-13
42
34.5
17
0.25
ZT6.5.41-14
48
13
35
0.38
ZT6.5.41-15
60
0.59
ZT6.5.41-16
48
42.5
18
0.33
ZT6.5.41-17
60
0.51
ZT6.5.41-18
48.5
20
17
42
0.61
ZT6.5.41-19
18.5
12
12
35
0.83
ZT6.5.41-20
28.5
16
7
0.61
  标准示例:变径直通22×18 ZT6.5.41-1
Copyright © 2012 南通市立新机械制造有限公司 地址:江苏启东市城北工业园杨沙路27号 润滑设备
电话:0513-83308668 传真:0513-83308989 网址:www.ntlx.cn E-mail:ntlx@ntlx.cn
在线咨询